Gymnases & Parcs
Gymnases
École Anne-Hébert
555, chemin Ste-Foy, Québec G1S 2J9
Stationnement dans la rue. Accessible en autobus (807 à proximité).
Pour accéder au gymnase, prendre la porte située au 835, rue Brown, et monter de 2 étages. Dans le couloir en face de la porte, vous pourrez accéder aux vestiaires (sur la gauche). Lorsque vous serez changés, revenez dans le corridor et faites le tour pour accéder au gymnase (voir photo ci-dessous).
IMPORTANT: Il y a un groupe de Taekwon-do avant nous, attendez dans le corridor que le groupe quitte le gymnase avant d’entrer. Svp ne pas faire de bruit avant la fin complète de leur activité.
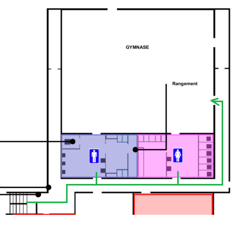
École Cardinal-Roy
50 rue du Cardinal-Maurice-Roy, Québec, QC G1K 8S9
Stationnement gratuit.
Stationnement dans le parking Indigo avec vignettes de stationnement. Entrée par la porte numéro 1 (en avant).
École de la Cité
1625 Boulevard Benoît-XV, Québec, QC G1L 2Z3
Le stationnement avec vignette de stationnement est accessible par le boulevard Cardinal-Villeneuve (contactez votre capitaine si besoin de vignette).
Il est également possible de stationner dans la rue. L’entrée se fait par l’arrière de l’école. Une fois à l’intérieur vous devez descendre l’escalier pour accéder au gymnase.
École de la Grande-Hermine
1355 2ème Avenue, Québec, QC G1L 0A6
Stationnement dans la rue ou sur le parking Indigo avec vignettes de stationnement. L’entrée se fait par la porte principale, sur la 2ème avenue. Le gymnase sera au fond à droite en rentrant.
École du Domaine
1630 rue des Balsamines, Québec, QC G1M 2K9
Le stationnement est gratuit et est possible sur le côté de l’école et dans la rue devant. L’accès au gymnase se fait par la porte principale à l’avant de l’école.
École de l’Escabelle – Pavillon A
2120 rue du Curé Lacroix, Québec, QC G2B 1S1
Entrée 3 située sur la droite de l’école.
École Filteau
830 Rue de Saurel, Québec, QC G1X 3P6
Le stationnement se fait à l’arrière de l’école. L’entrée est dans le coin entre les deux bâtisses.

École de l’Escale et du Plateau – Bâtiment Escale
8805 Av. de Laval, Québec, QC G1G 4X6
Le stationnement est gratuit et se trouve sur la gauche du bâtiment. Entrer et sortir par la porte numéro 3 à gauche du bâtiment.
École Fernand-Séguin
2590 rue Biencourt, Québec, QC G1V 1H3
Le stationnement est gratuit et se fait sur le côté droit ou dans la cour arrière de l’école. L’entrée du gymnase est à l’arrière de l’école, vous devez descendre les marches et la porte d’entrée #4 se trouve sous la passerelle.
École Marie-Renouard
2970 Avenue Gaspard, Québec, QC G1C 3V7
Le stationnement est gratuit et se trouve de chaque côté de l’école. Le plus près de l’entrée est celui accessible par l’Avenue St. Samuel. L’entrée pour le gymnase se fait par la porte #3, à l’arrière de l’école, près de l’avenue St. Samuel. Notez qu’il n’y a pas d’accès à des abreuvoirs ni a des vestiaires dans ce gymnase.
École primaire Notre-Dame-de-Foy
762 rue Jacques Berthiaume, Québec, QC G1V 3T1
Le stationnement est gratuit et situé à la droite de l’école, près de l’enseigne RSEQ. L’accès au gymnase se fait par la porte qui est tout prêt de l’enseigne et du stationnement.
École de la Fourmilière
5125 2e Ave Ouest, Québec City, Quebec G1H 6L2
Le stationnement se fait dans les rues. L’entrée se fait par la porte #5, à l’arrière de l’école.

Centre Louis-Jolliet
1201 rue de la Pointe-aux-Lièvres, Québec, QC G1L 4M1
Le stationnement est gratuit avec vignettes de stationnement , (contactez votre capitaine si besoin de vignette). Le parking se trouve à l’arrière du centre, accessible par la rue Julien. L’entrée pour le gymnase se fait par la porte #9 à l’arrière du bâtiment.
À l’intérieur tournez à droite, ensuite continuez tout droit (pour le gymnase A) ou tournez à droite (pour le gymnase B).
CENTRE COMMUNAUTAIRE LEBOURGNEUF
1650 boulevard de la Morille, Québec City, Quebec G2K2J9
Le stationnement se fait dans le parking du centre. Rentrer par la porte principal, aller tout droit, dépasser l’accueil et descendre la rampe vers les gym double 1 et 2 qui se trouvent sur la gauche. Les vestiaires sont sur la droire.
Parc Ross
1920 Av Ernest-Lavigne, Québec, QC G1T 2K6
Sur le terrain de baseball. Stationnement dans la rue Eugène-Fiset.
Parc Ste-Geneviève
3200 Av d’Amours, Sainte-Foy-Sillery-Cap-Rouge.








